izaberite novi grad
dodajte nekretninu u posebno izdvojene

Stan u izgradnji, nov projekat na vrhu Mirijeva

1 stanovi Beograd Mirijevo  novogradnja Jednoiposoban
stan - prodaja
lokacija Beograd - Zvezdara - Mirijevo I II III IV - Mirijevo
adresa
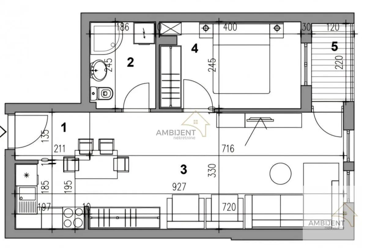
stan površina 47,29m²
sobe 1,5 Jednoiposoban
terase Terasa + Lodja
sprat 2 od 4 spratova, sa Liftom
grejanje norveški radijatori
stanje novogradnja Lux
garaža parking 1 X Garaža1 X Parking
dodatno
uslovi kupoprodaje 123.000€ [ 2600 €/m² ] , Cena je u porastu

ID 939 Direktna cena od investitora bez provizije. Izrada i nadzor overe kupoprodajnog ugovora su obezbeđeni. - Stan se nalazi u Mirijevu, lokacija zgrade je dovoljno udaljena i zelenilom zaštićena od saobraćajnica, pruža jedinstvenu mogućnost za moderno i komforno stanovanje u ambijentu mira i tišine a opet dovoljno blizu velikog naselja koje ima sve sadržaje za šetnju, sport, rekreaciju, igru i zdravo odrastanje dece. - Struktura stana: ulazni hodnik, prostrani dnevni boravak sa trpezarijom i kuhinjom, spavaću sobu, kupatilo i lođu koja je sjajan kutak za odmor ili rad. Stan ovakve strukture može se naći i na drugom spratu. - Prostorije su pravilnog oblika, funkcionalne i prozračne. - Dostupno još stanova različitih kvadratura, različite strukture i spratnosti. - Postoji mogućnost kupovine parking mesta, cena je 12000e sa pdv-om. - Mogućnost korigovanja cene u odnosu na način otplate. Rok završetka radova kraj 2027. Cena sa PDV-om, a pravo na povraćaj imaju kupci prvog stana. Broj u registru posrednika 1667. Kontakt za više informacija ili dogovor oko razgledanja: 064/3255742 Video nadzor, Video interfon, Interfon, Nije poslednji sprat Može na kredit Gradska kanalizacija Topla voda
ID nekretnine 219298
izmena 25.2.2026
ažuriran 18.4.2026
https://www.berzanekretnina.org/expose/219298
Agencija za nekretnine
Ambijent Nekretnine
Ambijent Nekretnine  Agencija za nekretnine

Br. u registru 1667


prikaz promena cene za ovu nekretninu
107477 € 15.1.2026 123000 € 25.2.2026