izaberite novi grad
dodajte nekretninu u posebno izdvojene

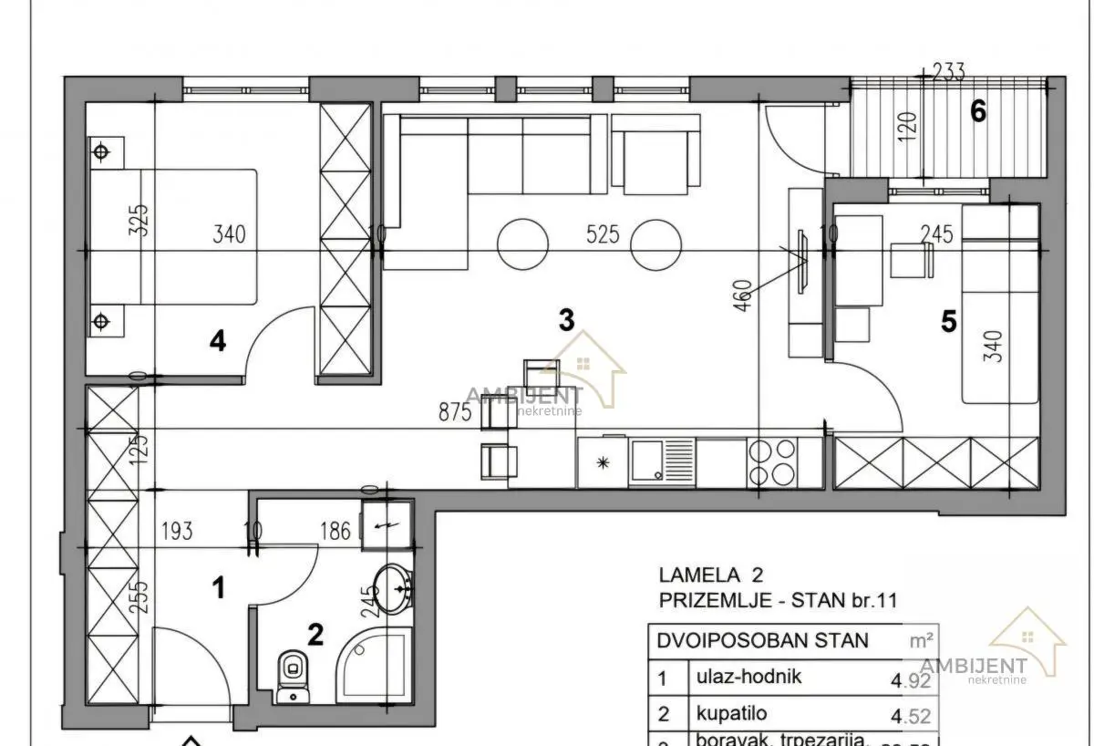
Stan u izgradnji, nov projekat na vrhu Mirijeva

1 stanovi Beograd Mirijevo  novogradnja Dvoiposoban
stan - prodaja
lokacija Beograd - Zvezdara - Mirijevo I II III IV - Mirijevo
adresa
stan površina 58,48m²
sobe 2,5 Dvoiposoban
terase Terasa + Lodja
sprat 1 od 4 spratova, sa Liftom
grejanje norveški radijatori
stanje novogradnja Lux
garaža parking 1 X Parking
dodatno
uslovi kupoprodaje 132.909€ [ 2272 €/m² ]

ID 938 Kontakt za više informacija ili dogovor oko razgledanja: 064/3255742 Direktna cena od investitora bez provizije. Izrada i nadzor overe kupoprodajnog ugovora su obezbeđeni. - Stan se nalazi u Mirijevu, lokacija zgrade je dovoljno udaljena i zelenilom zaštićena od saobraćajnica, pruža jedinstvenu mogućnost za moderno i komforno stanovanje u ambijentu mira i tišine a opet dovoljno blizu velikog naselja koje ima sve sadržaje za šetnju, sport, rekreaciju, igru i zdravo odrastanje dece. - Struktura stana: ulazni hodnik, prostrani dnevni boravak sa trpezarijom i kuhinjom, dve spavaće sobe, kupatilo i terasa koja je sjajan kutak za odmor. - Prostorije su pravilnog oblika, funkcionalne i prozračne. - Dostupno još stanova različitih kvadratura, različite strukture i spratnosti. - Postoji mogućnost kupovine parking mesta, cena je 12000e sa pdv-om. - Mogućnost korigovanja cene u odnosu na način otplate. Rok završetka radova kraj 2027. Cena bez PDV-a, a pravo na povraćaj imaju kupci prvog stana. Broj u registru posrednika 1667. Video nadzor, Video interfon, Interfon, Nije poslednji sprat Može na kredit Gradska kanalizacija Topla voda
ID nekretnine 219297
izmena 15.1.2026
ažuriran 15.1.2026
https://www.berzanekretnina.org/expose/219297
Agencija za nekretnine
Ambijent Nekretnine
Ambijent Nekretnine  Agencija za nekretnine

Br. u registru 1667