izaberite novi grad
dodajte nekretninu u posebno izdvojene

Stan u izgradnji, moderno stanovanje u jednoiposobnom stanu

1  novogradnja Jednoiposoban stanovi Zvezdara Mirijevo I II III IV 97618 evra
stan - prodaja
lokacija Beograd - Zvezdara - Mirijevo I II III IV - Mirijevo
adresa
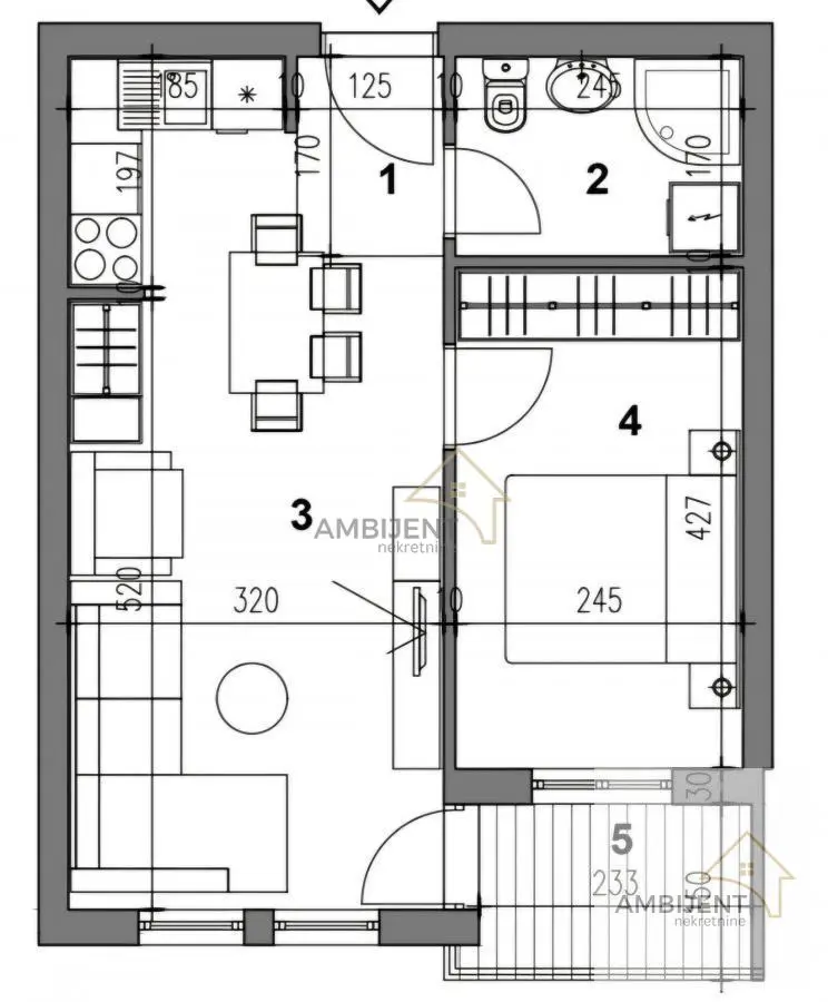
stan površina 41,3m²
sobe 1,5 Jednoiposoban
terase Terasa + Lodja
sprat 1 od 4 spratova, sa Liftom
grejanje norveški radijatori
stanje novogradnja Lux
garaža parking 1 X Parking
dodatno
uslovi kupoprodaje 97.618€ [ 2363 €/m² ]

ID 929 Direktna cena od investitora bez provizije. Izrada i nadzor overe kupoprodajnog ugovora su obezbeđeni. - Stan se nalazi u Mirijevu, lokacija zgrade je dovoljno udaljena i zelenilom zaštićena od saobraćajnica, pruža jedinstvenu mogućnost za moderno i komforno stanovanje u ambijentu mira i tišine a opet dovoljno blizu velikog naselja koje ima sve sadržaje za šetnju, sport, rekreaciju, igru i zdravo odrastanje dece. - Struktura stana: ulazni hodnik, prostrani dnevni boravak sa trpezarijom i kuhinjom, spavaća soba, kupatilo i lođa koja je sjajan kutak za odmor ili rad. Stan ovakve strukture se može naći i na trećem spratu. -Prostorije su pravilnog oblika, funkcionalne i prozračne. - Postoji mogućnost kupovine parking mesta, cena je 12000e sa pdv-om. - Mogućnost korigovanja cene u odnosu na način otplate. Rok završetka radova novembar 2026. Cena bez PDV-a, a pravo na povraćaj imaju kupci prvog stana. Broj u registru posrednika 1667. Kontakt za više informacija ili dogovor oko razgledanja: 064/3255742 Video nadzor, Video interfon, Interfon, Nije poslednji sprat Može na kredit Gradska kanalizacija Topla voda
ID nekretnine 213842
izmena 5.11.2025
ažuriran 28.12.2025
https://www.berzanekretnina.org/expose/213842
Agencija za nekretnine
Ambijent Nekretnine
Ambijent Nekretnine  Agencija za nekretnine

Br. u registru 1667