izaberite novi grad
dodajte nekretninu u posebno izdvojene

Novogradnja u Borči sa parking mestom, Ovčanski put ID#3710

2  novogradnja Jednoiposoban stanovi Palilula Borča 96054 evra
stan - prodaja
lokacija Beograd - Palilula - Borča
adresa Ovčanski put
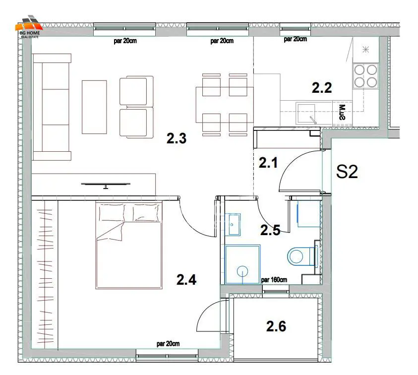
stan površina 45,74m²
sobe 1,5 Jednoiposoban
terase Terasa
sprat 1 od 2 spratova,
grejanje etažno
stanje novogradnja
garaža parking 1 X Parking
dodatno
uslovi kupoprodaje 96.054€ [ 2100 €/m² ]

1.5, 45,74m2, terasa, I/2, EG, telefon, interfon, parking mesto. Građevinska dozvola. 🏡 Prodaja stana – Borča, Ovčanski put U ponudi moderan jednoiposoban stan od 45,74m² u kvalitetnoj novogradnji, smešten u mirnom i planski uređenom kompleksu zatvorenog tipa. ✨ Osnovne karakteristike: Struktura: 1.5 Površina: 45,74m² Terasa U cenu uključeno parking mesto Novogradnja 📍 Lokacija: Stan se nalazi na odličnoj lokaciji u Borči, u neposrednoj blizini Zrenjaninskog puta, što omogućava brzu povezanost sa ostatkom grada. 🏢 Kompleks: Sastoji se od 14 lamela Zatvoren tip – sigurnost i privatnost Projektovan za miran, porodičan život i osećaj zajednice 🔥 Grejanje i oprema: Podno grejanje Klima uređaj Energetski efikasan objekat Stanovi do 80m² – grejanje na električne kotlove Stanovi preko 80m² – toplotne pumpe (voda–vazduh) 🌿 Ambijent: Kompleks pruža idealan balans između urbanog života i mira – savršen za porodice i sve koji žele kvalitetan i harmoničan prostor za život. Cena je sa PDV. Povrat PDV za kupca prvog stana. Rok završetka sredina 2027. godine. U ponudi stanovi različitih struktura i kvadratura. 📞 Za više informacija i zakazivanje gledanja, kontaktirajte nas na broj telefona 064/8132137 Broj u registru posrednika 1308 Agencijska provizija 2%
ID nekretnine 229381
izmena 26.4.2026
ažuriran 26.4.2026
https://www.berzanekretnina.org/expose/229381
Agencija za nekretnine
BG home real estate
BG home real estate  Agencija za nekretnine
Beograd, Rade Končara 2

Br. u registru 1308