izaberite novi grad
dodajte nekretninu u posebno izdvojene

3.5 stan u novogradnji na Panteleju

5 Niš Pantelej Troiposoban stanovi 119664 evra
stan , prizemlje - prodaja
lokacija Niš - Pantelej - -
adresa
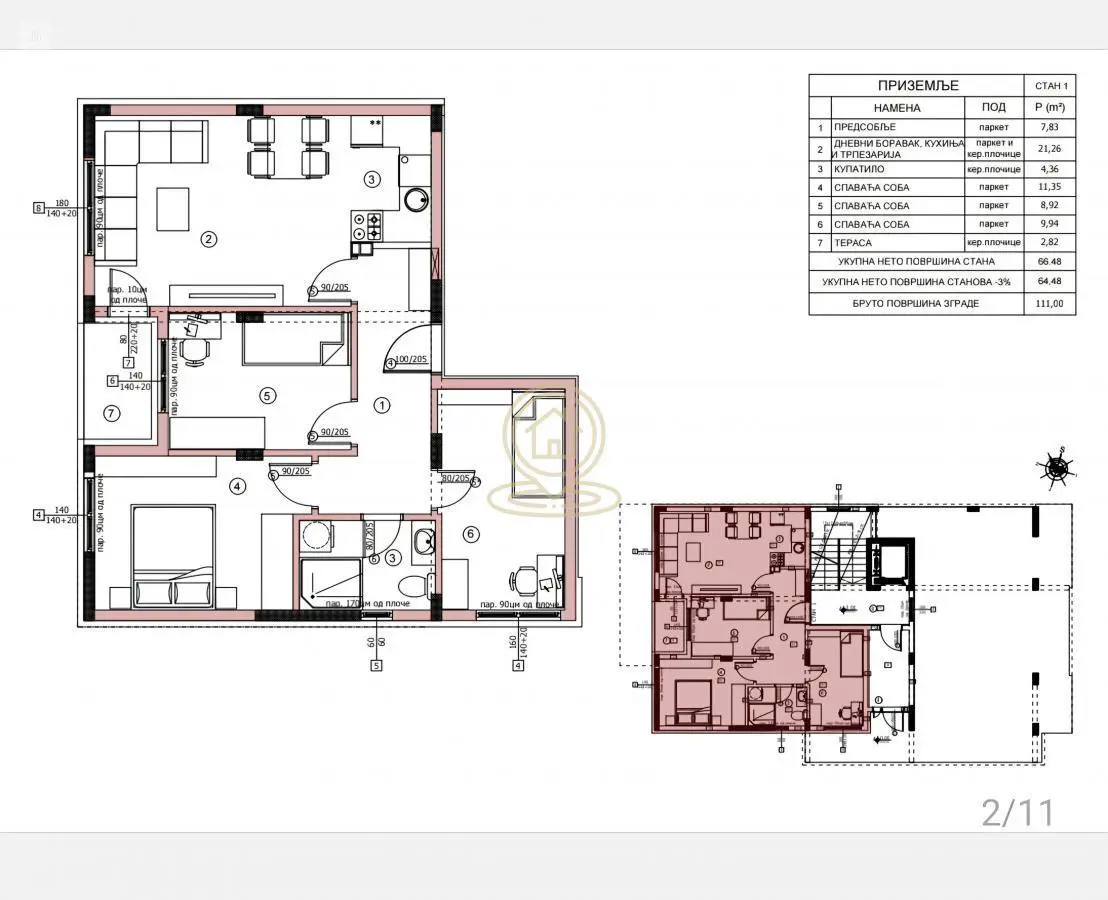
stan površina 67m²
sobe 3,5 Troiposoban
terase Terasa
sprat prizemlje od 4 spratova sa Liftom
grejanje podno
stanje u izgradnji
garaža parking 1 X Parking
godina gradnje 2026
podrum Podrum
dodatno
uslovi kupoprodaje 119.664€ [ 1786 €/m² ]

Na prodaju troiposoban stan u kvalitetnoj novogradnji na Panteleju. Nalazi se u prizemlju stambene zgrade, idealan za Kvadratura: 66,48 m² Sastoji se od: -predsoblja -dnevne sobe sa trpezarijom i kuhinjom - spavace sobe -kupatila -terase U ponudi su stanovi u kvalitetnoj novogradnji na Panteleju, u Gornjomatejevačkoj ulici. Investitor sa dugogodišnjim iskustvom i proverenim kvalitetom gradnje, iza koga stoji realizacija više od 10 stambenih objekata na teritoriji grada. Objekat je spratnosti Po+P+IV i projektovan je u skladu sa savremenim standardima stanovanja. U ponudi su stanovi različitih struktura i kvadratura od 44m² do 66m² (jednoiposobni, dvoiposobni i troiposobni), sa funkcionalnim rasporedima i maksimalno iskorišćenim prostorom. Zgrada poseduje lift, a oprema i završni radovi obuhvataju: * podno grejanje sa kalorimetrima * PVC stolariju sa aluminijumskim roletnama * demit fasadu * keramiku prve klase * energetski pasoš U okviru parcele predviđena su parking mesta, uz mogućnost kupovine po ceni od 6.000€. Rok završetka radova planiran je za jun 2027. godine. Mogucnost kupovine putem stambenog kredita uz 20% učešća. Cena po m² u zavisnosti od dinamike plaćanja: Keš: 44-46m² 1900e, 56-66m² 1800e Kredit 2000e Odlična prilika kako za porodično stanovanje, tako i za investiciju Za vise informacija kontaktirajte nas Agencijska provizija u skladu sa opstim uslovima poslovanja Kompas neketnine- vas pouzdan partner u kupovini i prodaji nekretnina Klima, Interfon, Video interfon, Video nadzor, Može na kredit Nije poslednji sprat Ostava
ID nekretnine 229024
izmena 20.4.2026
ažuriran 23.4.2026
https://www.berzanekretnina.org/expose/229024
Agencija za nekretnine
Kompas Nekretnine
Kompas Nekretnine  Agencija za nekretnine

Br. u registru 1596