izaberite novi grad
dodajte nekretninu u posebno izdvojene

2.5 stan u NOVOGRADNJI, Donja Vrežina

1  novogradnja Dvoiposoban stanovi Pantelej - 108000 evra
stan - prodaja
lokacija Niš - Pantelej - - - Donja vrežina
adresa
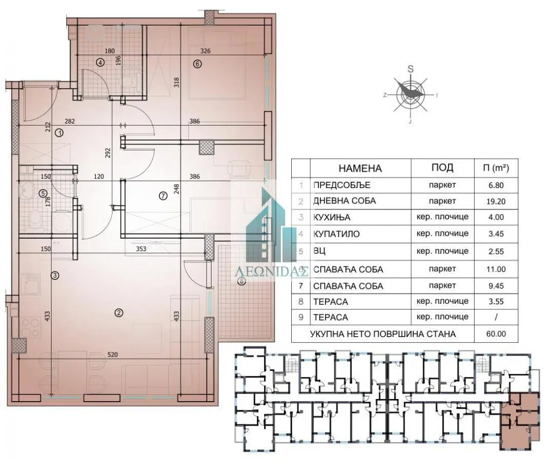
stan površina 60m²
sobe 2,5 Dvoiposoban
terase Terasa
sprat 1 od 4 spratova, sa Liftom
grejanje etažno
stanje novogradnja
dodatno
uslovi kupoprodaje 108.000€ [ 1800 €/m² ] , Cena je u porastu

Niš, Donja Vrežina, Vrežinski Bulevar - Prodaje se 2.5 stan, 60m2, u novogradnji u neposrednoj blizini Vrežinskog Bulevara. Trenutno je ova kvadratura raspoloživa na više spratova u zgradi od ukupno 4. Zgrada poseduje lift. Stan ove kvadrature poseduje prostran dnevni boravak sa trpezarijom i kuhinjskim delom, 2 odvojene spavaće sobe, predsoblje, terasu, kupatilo i mokri čvor. Grejanje je predviđeno na inverter klimu, a postoji i mogućnost izbora (kotao na struju), u skladu sa zahtevima budućih vlasnika. Kvalitet gradnje je izvanredan, više detalja putem kontakta u nastavku. Cena stana u trenutnoj fazi gradnje iznosi 108000eur. Mogućnost kupovine parking mesta. I za prve kupce, postoji mogućnost povraćaja PDV-a. Rok završetka je predviđen za Decembar 2027. godine. Kontakt za više informacija: 060/505-6429, 063/163-5233. BEZ PROVIZIJE ZA KUPCE. Agencija Leonidas nekretnine upisana je u Registar posrednika pod brojem 1599. Video nadzor, Klima, Nije prizemlje Nije poslednji sprat Može na kredit
ID nekretnine 228102
izmena 11.4.2026
ažuriran 23.4.2026
https://www.berzanekretnina.org/expose/228102
Agencija za nekretnine
Leonidas nekretnine
Leonidas nekretnine  Agencija za nekretnine
Niš, Bulevar dr Zorana Đinđića 7/1

Br. u registru 1599


prikaz promena cene za ovu nekretninu
107100 € 8.4.2026 108000 € 11.4.2026