izaberite novi grad
dodajte nekretninu u posebno izdvojene

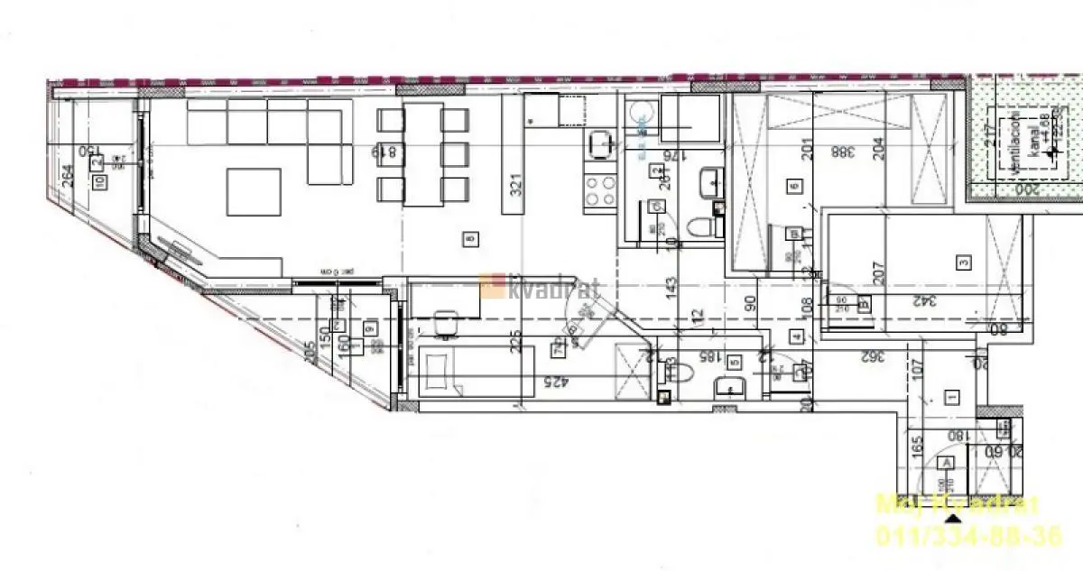
Voždovac, Autokomanda - Vojvode Stepe, 76m2

2 stanovi Beograd Vojvode Stepe  novogradnja Dvoiposoban
stan - prodaja
lokacija Beograd - Voždovac - Autokomanda
adresa Vojvode Stepe
stan površina 76m²
sobe 2,5 Dvoiposoban
terase Terasa
sprat 5 od 8 spratova, sa Liftom
grejanje podno
stanje novogradnja Lux
garaža parking 1 X Garaža
godina gradnje 2026
dodatno
uslovi kupoprodaje 287.166€ [ 3778 €/m² ]

Voždovac, Autokomanda - Vojvode Stepe 2.5, 76m2 (dve terase 7m2), 5/8, EG-podno grejanje, lift, telefon, interfon, garaža Izdvajamo iz ponude stanove različitih struktura (od dvosobnih do petosobnih) u modernom stambeno-poslovnom objektu u blizini Autokomande. Zgrada se nalazi na jednoj od najtraženijih lokacija, nadomak svih sadržaja neophodnih za udoban gradski život. Tokom gradnje koriste se vrhunski materijali: Šestokomorna stolarija, uvozna keramika premium klase i moderan lift. Etažno podno grejanje je u svim jedinicama, što daje maksimalnu energetsku efikasnost i niske mesečne režije. Visok kvalitet radova sa fokusom na dugovečnost i estetski prijatan izgled zajedničkih prostorija. Ovi stanovi predstavljaju savršen spoj funkcionalnosti i luksuza, idealni kako za porodični dom, tako i kao sigurna investicija za izdavanje. Postoji mogućnost kupovine parking mesta u podzemnoj garaži po cenama od (sistem klackalice) 40.000 € i (obično GM) 45.000 € + PDV. Sve cene su iskazane bez uračunatog PDV-a. Planirani rok završetka radova: jun 2027. godine. Građevinska dozvola. Agencijska provizija 2%. Interfon, Telefon, Nije prizemlje Nije poslednji sprat Gradska kanalizacija
ID nekretnine 227478
izmena 2.4.2026
ažuriran 17.5.2026
https://www.berzanekretnina.org/expose/227478
Preduzeće za nekretnine
MOJ KVADRAT D.O.O.
MOJ KVADRAT D.O.O.   Preduzeće za nekretnine

Br. u registru 167