izaberite novi grad
dodajte nekretninu u posebno izdvojene

Zvezdara - Učiteljsko naselje, 34m2

1 stanovi Beograd Učiteljsko Naselje  novogradnja Jednoiposoban
stan - prodaja
lokacija Beograd - Zvezdara - Učiteljsko naselje - Učiteljsko Naselje
adresa
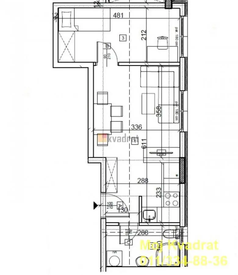
stan površina 34m²
sobe 1,5 Jednoiposoban
terase
sprat 1 od 5 spratova, sa Liftom
grejanje podno
stanje novogradnja
garaža parking 1 X Garaža
godina gradnje 2026
dodatno
uslovi kupoprodaje 117.900€ [ 3467 €/m² ]

Zvezdara - Učiteljsko naselje 1.5, 34m2, 1/5, EG - podno grejanje, lift, telefon, interfon, garaža Izdvajamo iz ponude stanove različitih struktura jednoiposoban, dvosoban i dvoiposoban na različitim etažama u modernoj novogradnji na jednoj od najtraženijih lokacija u Beogradu, u Učiteljskom naselju. Zgrada se nalazi u mirnom delu, u blizini pijace, doma zdravlja, šoping centra i svih sadržaja neophodnih za udoban gradski život. Prilikom gradnje primenjuju se najviši standardi, uz korišćenje vrhunskih materijala koji garantuju dugovečnost i maksimalnu udobnost stanovanja. U ponudi su vrhunska keramika, šestokomorna stolarija, moderan lift, kao i visok kvalitet završne obrade i prijatan izgled ulaza i zajedničkih prostorija. Svi stanovi imaju ugrađeno etažno podno grejanje, što obezbeđuje niske mesečne troškove i veću energetsku efikasnost. Predstavljaju idealan spoj funkcionalnosti i luksuza, bilo da tražite porodični dom ili sigurnu investiciju za izdavanje. Cene stanova iskazane su sa uračunatim PDV-om. Postoji mogućnost kupovine parking mesta u garaži (sistem klackalice) po ceni od 23.000 € + PDV. Rok završetka decembar 2026. godine. Građevinska dozvola. Agencijska provizija 2%. Agent Ana Kitanovski: 062/371-987 (licenca br. 3454) Interfon, Telefon, Nije prizemlje Nije poslednji sprat Gradska kanalizacija
ID nekretnine 227039
izmena 24.4.2026
ažuriran 15.5.2026
https://www.berzanekretnina.org/expose/227039
Preduzeće za nekretnine
MOJ KVADRAT D.O.O.
MOJ KVADRAT D.O.O.   Preduzeće za nekretnine

Br. u registru 167