izaberite novi grad
dodajte nekretninu u posebno izdvojene

Mirijevo– moderan stan,novogradnja lux ID#1627

1 Trosoban stanovi Zvezdara Mirijevo I II III IV 160000 evra
stan , Visoko prizemlje - prodaja
lokacija Beograd - Zvezdara - Mirijevo I II III IV
adresa
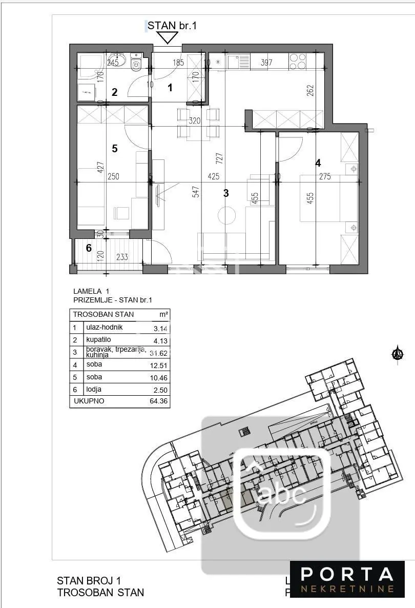
stan površina 64,36m²
sobe 3,0 Trosoban
kupatila 1 kupatila
terase
sprat Visoko prizemlje od 4 spratova
grejanje etažno
dodatno
uslovi kupoprodaje 160.000€ [ 2486 €/m² ]

NOVOGRADNJA MIRIJEVO – MODERAN STAN U PRIRODNOM OKRUŽENJU Cena stana je 160000 eur Predstavljamo vam jedinstvenu priliku za savremeno i komforno stanovanje u jednom od najlepših delova Mirijeva – na uzvišenju sa panoramskim pogledom na Dunav i Avalu! Stan se sastoji iz hodnika,dnevno trpezarijskog boravka sa kuhinjom, dve spavaće sobe, kupatila i lođe sa prelepim pogledom. Lokacija: Mirna i zelena zona, idealna za porodičan život – udaljena od buke i saobraćaja, a na samo par minuta od: gradskog prevoza,škola ,vrtića, marketa, banke, pijace i Doma zdravlja O zgradi: Novogradnja – rok završetka mart 2026. Dve lamele, po četiri sprata + povučeni sprat Dva lifta, podzemna garažai Rampa za invalide Kvalitet gradnje: Hrastov višeslojni parket, termo blokovi poboljšanih karakteristika, PVC stolarija sa dvoslojnim staklom i aluminijumske roletne Stanovi su opremljeni: Norveškim radijatorima,Walk-in tuševima,sušačima veša i kvalitetnim pločicama renomiranih brendova Dodatne pogodnosti: Garažna mesta sa ventilacijom i protivpožarnim sistemom koje možete kupiti po ceni od 12000 eur sa uračunatim PDV(20%). Mogućnost ugradnje elektro-punjača (uz doplatu) Cena: Za više informacija, prezentaciju stana i rezervacije, kontaktirajte nas već danas. . Agencijska provizija 2%
ID nekretnine 226931
izmena 27.3.2026
ažuriran 27.3.2026
https://www.berzanekretnina.org/expose/226931
Agencija za nekretnine
AGENCIJA ZA NEKRETNINE PORTA NEKRETNINE
AGENCIJA ZA NEKRETNINE PORTA NEKRETNINE  Agencija za nekretnine
Beograd, Tadeuša Košćuška 94

Br. u registru 935