izaberite novi grad
dodajte nekretninu u posebno izdvojene

B.Brdo.,novogradnja kod Opštine Čukarica,2.5,59m2

1  novogradnja Dvoiposoban stanovi Čukarica Banovo brdo 227150 evra
stan - prodaja
lokacija Beograd - Čukarica - Banovo brdo - Kod Opšine
adresa Lješka
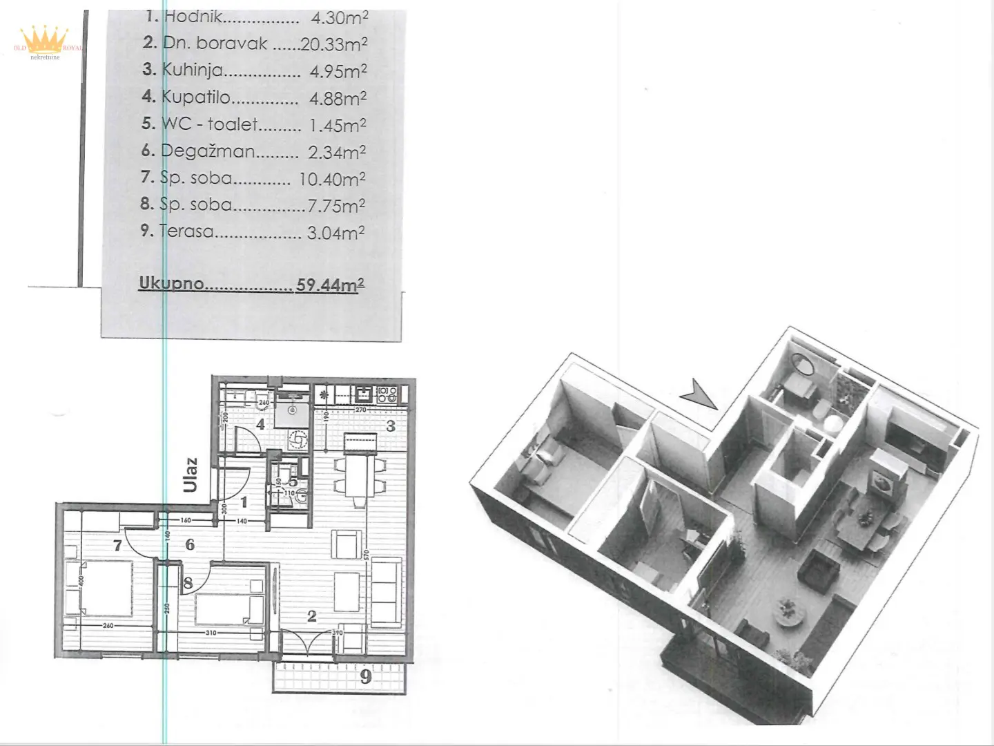
stan površina 59m²
sobe 2,5 Dvoiposoban
kupatila 2 kupatila
terase Terasa
sprat 1 od 3 spratova, sa Liftom
grejanje centralno, gorivo gas
stanje novogradnja lux
dodatno Interfon Kablovska TV
uslovi kupoprodaje 227.150€ [ 3850 €/m² ]
provizija : 2%
Da

Visokokvalitetna novogradnja u blizini Opštine Čukarica. Dvoiposoban stan,visoko prizemlje, dnevni boravak,kuhinja, dve spavaće sobe,dva mokra čvora, terasa. Useljivo krajem godine. U ponudi imamo i stan od 48m2. Grejanje na gas. Cena je sa uračunatim Pdv-om, povraćaj PDV-a za kupca prvog stana. Agencijska provizija je 2% Kontakt: 060/65 44 755
ID nekretnine 223741
izmena 26.2.2026
ažuriran 26.2.2026
https://www.berzanekretnina.org/expose/223741
Preduzeće za nekretnine
Old royal sistem d.o.o.