izaberite novi grad
dodajte nekretninu u posebno izdvojene

Prodaja stanova Novi Sad Petrovaradin – Novogradnja, Po+P+3+Pk, odlična lokacija, završetak radova 30. april 2027.

3 stanovi Novi Sad  novogradnja Dvosoban
stan , potkrovlje - prodaja
lokacija Novi Sad - Petrovaradin - -
adresa
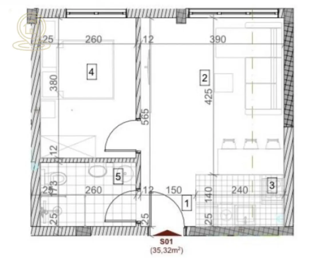
stan površina 46,25m²
sobe 2,0 Dvosoban
terase Terasa
sprat od 4 spratova, potkrovlje sa Liftom
grejanje gas
stanje novogradnja Lux
garaža parking 1 X Garaža1 X Parking
dodatno
uslovi kupoprodaje 111.948€ [ 2420 €/m² ]

Prodaja stanova Novi Sad – Novogradnja sa jednosobnim, dvosobnim, trosobnim i četvorosobnim stanovima U ponudi je prodaja stanova u Novom Sadu u savremenom višeporodičnom stambenom kompleksu (Po+P+3+Pk), na odličnoj lokaciji, idealnoj za porodično stanovanje ili kao investicija za izdavanje. Objekat se sastoji od 86 stambenih jedinica i 86 garažnih mesta, sa planiranim završetkom radova 30. aprila 2027. godine. U ponudi su jednosobni, dvosobni, trosobni i četvorosobni stanovi, površina od 29 m² do 101 m², prilagođeni različitim potrebama kupaca. Ova novogradnja predstavlja vrhunsku ponudu u okviru prodaja stanova Novi Sad, kako za krajnje kupce, tako i za investitore. Osnovne informacije – prodaja stanova Novi Sad (novogradnja) Tip nekretnine: novogradnja – stambeni kompleks Spratnost: Po + P + 3 + Pk Broj stanova: 86 stambenih jedinica Garaže: 86 garažnih mesta Površine stanova: 29 m² – 101 m² Strukture: jednosobni, dvosobni, trosobni i četvorosobni stanovi Planirani završetak: 30.04.2027. Namena: porodično stanovanje / investicija za izdavanje Cene izražene sa PDV-om Agencijska provizija je uračunata u cenu Mogućnost kupovine na kredit U slučaju kupovine putem kredita, cena kvadrata je viša za 100 €/m² Tehničke karakteristike objekta Grejanje na gas – individualno po stanu, veoma ekonomično Šestokomorna PVC stolarija nemačkog profila – DIKIĆ Sigurnosna vrata čelične konstrukcije, prirodna boja drveta – PORTA NS Staklene ograde na balkonima Troslojni Tarkett parket 14 mm sa kraljevskom lajsnom (6 cm) Geberit skriveni vodokotlić Gorenje bojler 80 L Demit fasada sa 10 cm termoizolacije Betonska krovna ploča 20 cm + kamena vuna 20 cm Kvalitet gradnje i energetska efikasnost Ova novogradnja u Novom Sadu nudi savremeni kvalitet gradnje, odličnu zvučnu i toplotnu izolaciju, moderan dizajn i visoku energetsku efikasnost. Svaki stan ima zasebno grejanje na gas, moderan enterijer i dugoročnu vrednost, što dodatno povećava isplativost u okviru prodaja stanova Novi Sad i budućeg izdavanja stanova Novi Sad. Lokacija – odlična lokacija Novi Sad Objekat se nalazi na odličnoj lokaciji u Novom Sadu, u blizini: škola i vrtića prodavnica i marketa javnog prevoza svih bitnih gradskih sadržaja Lokacija čini ove stanove idealnim kako za porodični život, tako i kao sigurnu investiciju u okviru prodaja stanova Novi Sad. Napomene Skice stanova dostupne nakon potpisivanja ugovora Skice iz oglasa ne odgovaraju konkretnom stanu Cene su izražene sa PDV-om Agencijska provizija je uračunata u cenu Moguća kupovina putem stambenog kredita (+100 €/m²) Agencija Kompas vas saradnik u prometu nekretnina Video nadzor, Video interfon, Interfon, Internet, Telefon, Kablovska, Klima,
ID nekretnine 220398
izmena 27.1.2026
ažuriran 13.3.2026
https://www.berzanekretnina.org/expose/220398
Agencija za nekretnine
Kompas Nekretnine
Kompas Nekretnine  Agencija za nekretnine

Br. u registru 1596