izaberite novi grad
dodajte nekretninu u posebno izdvojene

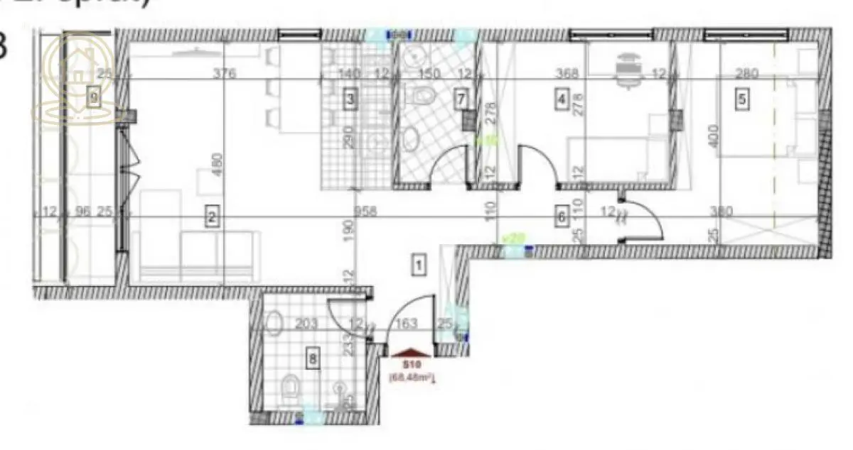
Prodaja stanova Novi Sad – Stanovi u izgradnji na Adicama, odlična lokacija, 36–79m²

4 Dvoiposoban stanovi Adice - 83021 evra
stan - prodaja
lokacija Novi Sad - Adice - -
adresa
stan površina 42m²
sobe 2,5 Dvoiposoban
terase Terasa
sprat 1 od 2 spratova, sa Liftom
grejanje etažno
stanje u izgradnji
garaža parking 1 X Garaža1 X Parking
dodatno
uslovi kupoprodaje 83.021€ [ 1976 €/m² ]

Prodaja stanova Novi Sad – Stanovi u izgradnji na Adicama u mirnom i porodičnom okruženju, kvadrature od 36m² do 79m². U ponudi su jednosobni, dvosobni i trosobni stanovi, savršeni za porodično stanovanje ili investiciju. Zgrada se nalazi na odličnoj lokaciji u okviru projekta Adice Kvartet, koji nudi pouzdan kvalitet gradnje i funkcionalan raspored prostorija. Rok završetka radova je jun 2026. godine + 60 dana tolerancije. Zgrada je već ozidana, a trenutno su u toku unutrašnji radovi, što omogućava potencijalnim kupcima da isprate sve faze izgradnje. Mogućnost odabira strukture stana prema vašim potrebama Idealan izbor za sve koji traže mirno okruženje, a da su istovremeno blizu centra grada Ako vas interesuje prodaja stanova u Novom Sadu na atraktivnoj lokaciji, ovaj projekat predstavlja odličnu priliku! Za više informacija i zakazivanje obilaska, kontaktirajte naš prodajni tim. provizija uracunata u cenu Kompas Nekretnine – vaš pouzdan partner u kupovini i prodaji nekretnina. Video interfon, Interfon, Internet, Telefon, Kablovska, Klima,
ID nekretnine 218803
izmena 9.1.2026
ažuriran 10.1.2026
https://www.berzanekretnina.org/expose/218803
Agencija za nekretnine
Kompas Nekretnine
Kompas Nekretnine  Agencija za nekretnine

Br. u registru 1596