izaberite novi grad
dodajte nekretninu u posebno izdvojene

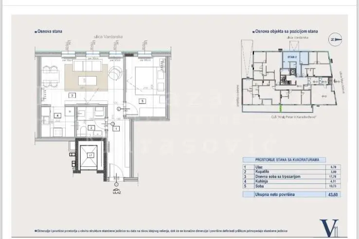
Vračar, Vardarska ugao sa Marulićevom, 43,05m2 ID#54124

1 Beograd Vračar Dvosoban stanovi 170000 evra
stan , Visoko prizemlje - prodaja
lokacija Beograd - Vračar - Čubura
adresa Vardarska
stan površina 43m²
sobe 2,0 Dvosoban
kupatila 1 kupatila
terase
sprat Visoko prizemlje od 5 spratova
grejanje centralno
dodatno
uslovi kupoprodaje 170.000€ [ 3953 €/m² ]

Luksuzan stan od 43.05 m2, po strukturi 2.0 soban sa vanstandardnom visinom plafona od 3 m, u završnoj fazi izgradnje se nalazi u Vardarskoj ulici, ugao sa Marulićevom ulicom, na Vračaru. U neposrednoj blizini nalazi se više škola, osnovna škola Kralj Petar, centar za obrazovanje, fudbalski i košarkaški tereni. Stan je uknjižen kao visoko prizemlje (VPr), ali se u realnom stanju nalazi na visini prvog sprata, približno 3 m iznad nivoa ulice. Orijentisan je prema Vardarskoj ulici i smešten je iznad ulaza u garaže luksuzne zgrade koja ima strukturu 2 nivoa garaže + Pr + 4 sprata + potkrovlje. Stan se sastoji od ulaznog hodnika, dnevnog boravka sa trpezarijom, posebne kuhinje, spavaće sobe i kupatila i biće opremljen najkvalitetnijom uvoznom opremom. Zgrada će biti priključena na daljinski sistem grejanja sa liftom i luksuznim ulaznim holom. Završetak radova i useljenje u zgradu je predviđeno za maj 2026.godine Postoji mogućnost kupovine jednog ili više garažnih mesta. Cena stana je 170.000 € (sa uračunatim PDVom) Agencijska provizija u skladu sa opštim uslovima poslovanja.
ID nekretnine 216884
izmena 10.12.2025
ažuriran 10.12.2025
https://www.berzanekretnina.org/expose/216884
Agencija za nekretnine
Kaća Lazarević i Marasović
Kaća Lazarević i Marasović  Agencija za nekretnine
Beograd, Tomaša Ježa 9

Br. u registru 1878