izaberite novi grad
dodajte nekretninu u posebno izdvojene

King's Circle Residence, luksuzna novogradnja ID#13009

1 Petosoban stanovi Vračar Slavija 1201830 evra
stan - prodaja
lokacija Beograd - Vračar - Slavija
adresa Kralja Milana
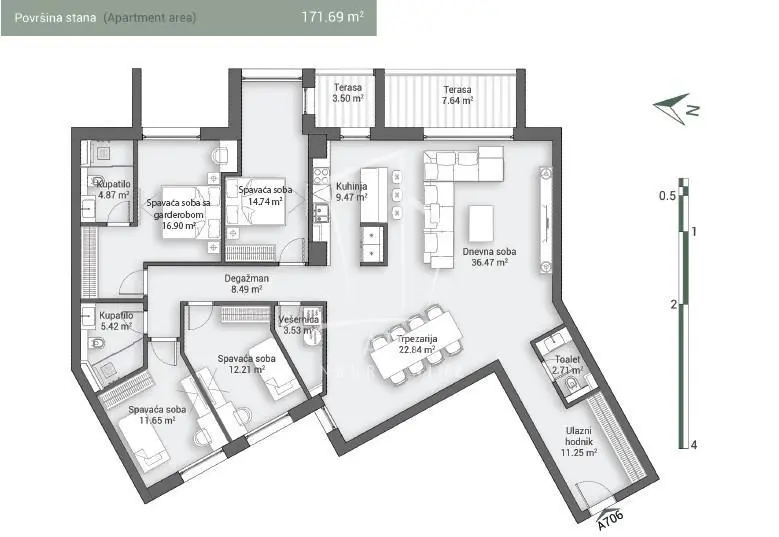
stan površina 171,69m²
sobe 5,0 Petosoban
terase Terasa
sprat 7 od 13 spratova,
grejanje centralno
dodatno
uslovi kupoprodaje 1.201.830€ [ 7000 €/m² ] , Cena je u padu

Luksuzni stan od 171.69 m² u kompleksu King’s Circle Residences na Slaviji, na VII spratu reprezentativne zgrade, sa garažnim mestom od 12,5 m² u podzemnoj garaži, po ceni od 60.000EUR. Stan je urađen od vrhunskih materijala, po najvišim standardima gradnje u funkciji konfornog I modernig života u centru grada. Oprema i karakteristike stana i zgrade: - Sigurnosna ulazna vrata pune visine. - Sobna vrata visine 240 cm - Višeslojni mat-lak parket - Keramika u mokrim čvorovima Ariostea. - Sanitarije Geberit Duo Fix ugradni vodokotlići, Villeroy & Boch (V&B Subway, Subway 2.0, Finion, Architectura). - tuš setovi Hansgrohe Ecostat S / Raindance, kabine od 8 mm „extra clear” kaljenog stakla. - Spoljna stolarija Reynaers ili Schüco sa troslojnim staklom - Podno grejanje u celom stanu + fan coil uređaji, grejanje i hlađenje preko LG vazduh–voda toplotne pumpe. - Putnički liftovi Schindler, Kone ili Otis. - centralni prekidač rasvete kod ulaza u stan, elektrogalanterija Legrand ili Vimar (Living Now). - Spa centar u sklopu kompleksa: bazen, saune, tursko kupatilo, teretana sa opremom Technogym, muške i ženske svlačionice sa tuševima. - Garaža sa numerisanim i ofarbanim parking-mestima, okrečenim zidovima i dodatno zaštićenim stubovima i ćoškovima. Uz stan obavezna kupovina garažnog mesta po ceni od 60.000eur. Stan predstavlja idealan izbor za kupce koji traže maksimalni komfor, sigurnost i prestižnu lokaciju u srcu grada. Agencijska provizija 2% Agent: Maja Vodovar, br. licence:3684 "Art nekretnine" d.o.o. Beograd Reg. br.339 011/26-20-734 MV04 .
ID nekretnine 215322
izmena 5.12.2025
ažuriran 11.3.2026
https://www.berzanekretnina.org/expose/215322
Agencija za nekretnine
Art nekretnine
Art nekretnine  Agencija za nekretnine
Beograd, Dositejeva 9

Br. u registru 339


prikaz promena cene za ovu nekretninu
1239602 € 22.11.2025 1201830 € 5.12.2025