izaberite novi grad
dodajte nekretninu u posebno izdvojene

Lokal za restoran i sl.

Premium
2 poslovni prostor Beograd Dr Velizara Kosanovića
poslovni prostor , lokal sa izlogom - izdavanje
lokacija Beograd - Zvezdara - Učiteljsko naselje
adresa Dr Velizara Kosanovića
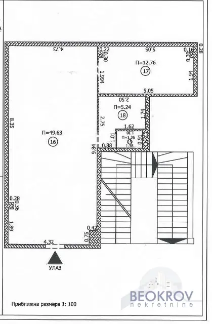
poslovni prostor površina 67m²
grejanje ta, gorivo struja
stanje održavan srednji
garaža parking 1 X Parking
dodatno Video nadzor
nameštenost prazan
  • Internet
useljivost Odmah
prevoz Autobus 2o, trolejbus 21...
uslovi iznajmljivanja 600€ [ 8 €/m² ]
provizija : U visini od pola mesečne zakupnine.
600

Nalazi se u poslovnoj zgradi, u gusto naseljenom području i blizu prevoza. Sastoji se od tri prostorije, hodnika i toaleta, Pogodan je za restoran, noćni klub, proizvodnju, trgovinu i dr.. Razgledanje je moguće radnim danima . Označen je deo grada- ne i tačna lokacija. Zakupac plačća proviziju u iznosu u visini od pola mesečne zakupnine. 069 236 5768
ID nekretnine 213049
izmena 4.12.2025
ažuriran 4.12.2025
https://www.berzanekretnina.org/expose/213049
Agencija za nekretnine
BEOKROV REAL doo Beograd