izaberite novi grad
dodajte nekretninu u posebno izdvojene

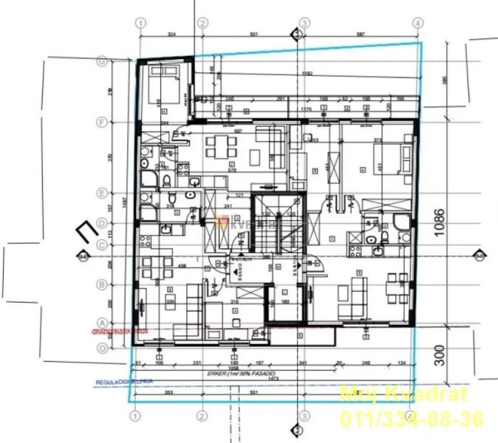
Zvazdara, Učiteljsko naselje - Podujevska, 66m2

1  novogradnja Dvoiposoban stanovi Zvezdara Učiteljsko naselje 203280 evra
stan - prodaja
lokacija Beograd - Zvezdara - Učiteljsko naselje - Učiteljsko Naselje
adresa Podujevska
stan površina 66m²
sobe 2,5 Dvoiposoban
terase Terasa
sprat 3 od 5 spratova, sa Liftom
grejanje etažno
stanje novogradnja
garaža parking 1 X Garaža
godina gradnje 2024
dodatno
uslovi kupoprodaje 203.280€ [ 3080 €/m² ]

Zvazdara, Učiteljsko naselje - Podujevska 2.5, 66m2 (terasa 8m2), 3/5, EG, lift, telefon, interfon, garaža Useljiva novogradnja, završeni građevinski radovi u septembru 2025. godine. Učiteljsko naselje pruža idealan spoj mirnog okruženja i blizine svih neophodnih sadržaja. Postoji mogućnost kupovine garažnog mesta. Za više informacija i za rezervacije kontaktirajte nas! U cenu stana je uračunat PDV. Građevinska dozvola. Agencijska provizija 2%. Agent Nemanja Đoković: 066/57-52-212 (licenca br. 5118) Interfon, Telefon, Nije poslednji sprat Gradska kanalizacija
ID nekretnine 194841
izmena 19.9.2025
ažuriran 26.11.2025
https://www.berzanekretnina.org/expose/194841
Preduzeće za nekretnine
MOJ KVADRAT D.O.O.
MOJ KVADRAT D.O.O.   Preduzeće za nekretnine

Br. u registru 167