izaberite novi grad
dodajte nekretninu u posebno izdvojene

Vračar, nov, odmah useljiv

2  novogradnja Dvoiposoban stanovi Vračar Crveni krst 276500 evra
stan - prodaja
lokacija Beograd - Vračar - Crveni krst
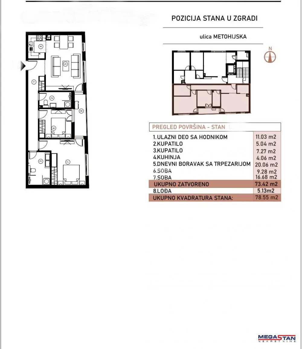
adresa Metohijska
stan površina 79m²
sobe 2,5 Dvoiposoban
kupatila 2 kupatila
terase
sprat 4 od 6 spratova,
grejanje etažno
stanje novogradnja
dodatno
uslovi kupoprodaje 276.500€ [ 3500 €/m² ] , Cena je u padu

Stan u novogradnji. Gleda na mirnu dvorišnu stranu. Ima dve spavaće sobe, dva kupatila, lođu. Odmah useljiv. Mogućnost kupovine garažnog mesta u zgradi, na klackalici. T Takođe je moguća kupovina putem stambenog kredita, banka po izboru kupca. Agencijska provizija za kupca 2%. Broj agencije u Registru posrednika 298. Mapa je informativnog karaktera, ne prikazuje tačnu lokaciju nekretnine.
ID nekretnine 187262
izmena 14.11.2025
ažuriran 14.11.2025
https://www.berzanekretnina.org/expose/187262
Agencija za nekretnine
Megastan nekretnine
Megastan nekretnine  Agencija za nekretnine
Beograd, Takovska 36

Br. u registru 298


prikaz promena cene za ovu nekretninu
259000 € 8.11.2024 257000 € 20.12.2024 233840 € 4.4.2025 276500 € 14.11.2025