izaberite novi grad
dodajte nekretninu u posebno izdvojene

Dušanovac, novogradnja, 1.5 stan ID#12898

2 Beograd Voždovac Jednoiposoban stanovi 157682 evra
stan - prodaja
lokacija Beograd - Voždovac - Dušanovac
adresa Ozrenska
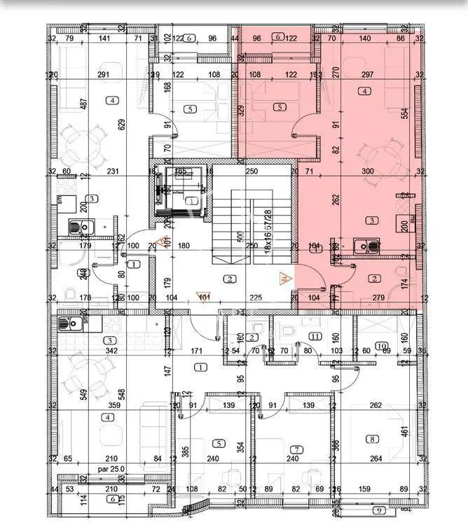
stan površina 41,55m²
sobe 1,5 Jednoiposoban
terase
sprat 6 od 8 spratova,
grejanje centralno
dodatno
uslovi kupoprodaje 157.682€ [ 3794 €/m² ]

Nova zgrada u izgradnji na eksluzivnoj lokaciji nadomak auto puta i Dušanovca, pruža savršenu pristupačnost i povezanost i gradskim prevozom. Zgrada je opremljena modernim uređajima i sistemima: - energetski efikasna izolacija od kamene vune - ALU stolarija - sigurnosna Bosal vrata - smart inverter klima u svakoj prostoriji - CG grejanje sa kalolimetrom - ventilacioni sistemi - kompletne kupatilske sanitarije - italijanska granitna keramika - troslojni hrastov parket Cena stana je sa uračunatim PDV-om. Garažno mesto nije uračunato u cenu. Obavezna kupovina garažnog mesta. Mogućnost kupovine na kredit. Rok završetka radova januar 2026. godine Bez provizije za kupce. Agent: Mijat Mijatović, br. licence 6206 "Art nekretnine" d.o.o. Beograd, Reg. br. 339 011/26-20-734 MM .
ID nekretnine 214436
izmena 12.11.2025
ažuriran 12.11.2025
https://www.berzanekretnina.org/expose/214436
Agencija za nekretnine
Art nekretnine
Art nekretnine  Agencija za nekretnine
Beograd, Dositejeva 9

Br. u registru 339