BG home real estate Rade Končara 2
dodajte nekretninu u posebno izdvojene

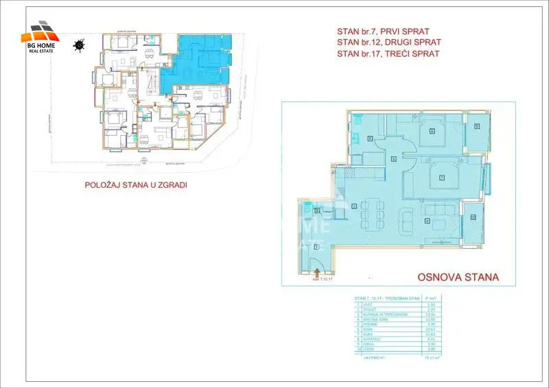
3.0 stan u luksuznoj novogradnji na Ceraku ID#3606

3 stanovi Beograd Trosoban
stan - prodaja
lokacija Beograd - Čukarica - Cerak
adresa
stan površina 75,17m²
sobe 3,0 Trosoban
terase
sprat 3 od 4 spratova,
grejanje etažno
dodatno
uslovi kupoprodaje 206.717€ [ 2749 €/m² ]

3.0, 75.17m2(lođa), EG, podno grejanje, inverter klima, lift, II/IV, telefon, interfon. Građevinska dozvola. Nova zgrada poznatog investitora. Više od 30 godina iskustva u gradnji stambenih objekata. Gradnja po savremenim standardima, visok kvalitet materijala i opreme. Termoizolacija(kamena vuna9, PVC-stolarija, EG-podno grejanje(termostat u svakoj prostoriji), iverter klima. U ovoj fazi gradnje investitor daje mogućnost kupcima da učestvuju u organizaciji prostora, prilagođavanje potrebama kupca. Odlična lokacija, blizu glavnih ulica, Košutnjaka i svih institucija potrebnih za porodični život. Zbog lokacije, kvaliteta gradnje, povoljno i kao investicija. Mogućnost kupovine garažnog mesta. Pouzdanost, lokacija i kvalitet. Cena je izražena bez PDV-a Rok završetka Mart 2027. godine. Kontakt Agent Miroslav 060/4333-406 Broj u registru posrednika 1308 Agencijska provizija 2%
ID nekretnine 221368
izmena 5.2.2026
ažuriran 17.3.2026
https://www.berzanekretnina.org/expose/221368
Agencija za nekretnine
BG home real estate
BG home real estate  Agencija za nekretnine
Beograd, Rade Končara 2

Br. u registru 1308