KARDINAL RESIDENCE doo Jagodina Kneginje MIlice 23/4/3
dodajte nekretninu u posebno izdvojene

Novogradnja sa povraćajem PDV-a

2  novogradnja Jednosoban stanovi Širi centar - 55350 evra
stan - prodaja
lokacija Jagodina - Širi centar - -
adresa
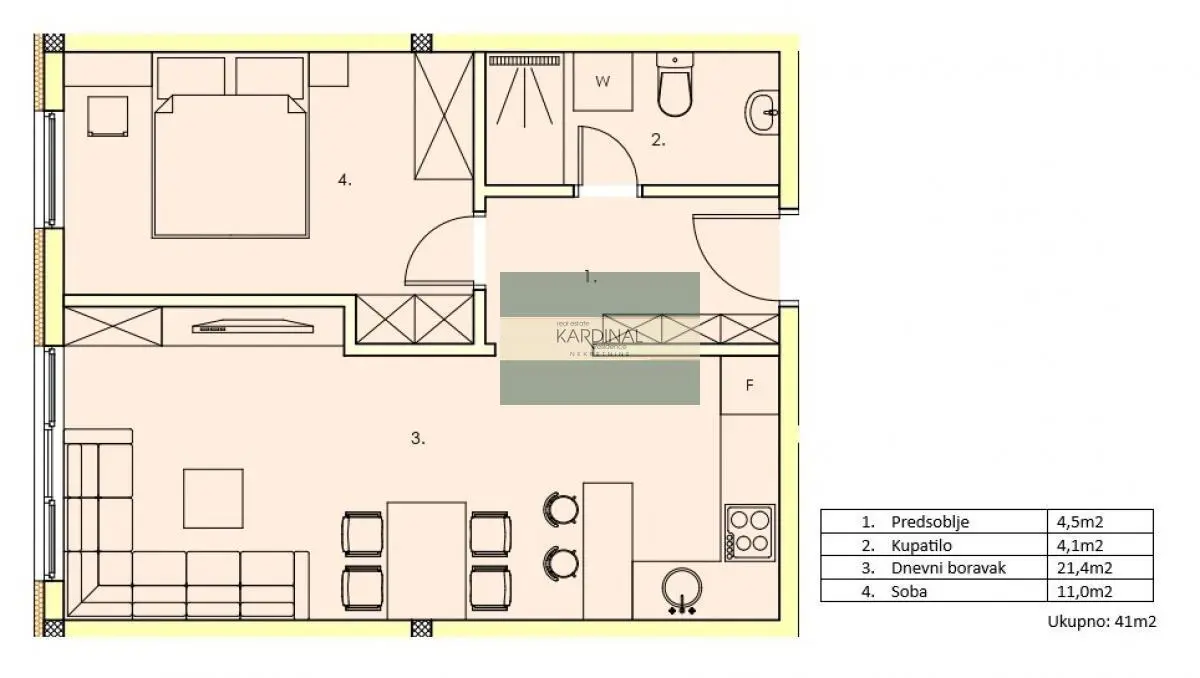
stan površina 41m²
sobe 1,0 Jednosoban
terase
sprat 5 od 5 spratova, sa Liftom
grejanje gas
stanje novogradnja
godina gradnje 2026
dodatno
uslovi kupoprodaje 55.350€ [ 1350 €/m² ]

EKSKLUZIVNA NOVOGRADNJA – POVRAĆAJ PDV-a! Tražite savršeno mesto za život ili sigurnu investiciju? Predstavljamo vam modernu zgradu u izgradnji, na izuzetnoj lokaciji – blizu centra, a ipak uvučena od buke i gužve, idealna za mir, komfor i kvalitetan život. Strukturu stana čine: -predsoblje -kupatilo -dnevni boravak -spavaća soba Ukupna površina stana je 41 m2. Cena po kvadratnom metru iznosi 1.350 € sa PDV-om.. Stan se nalazi na povučenom spratu. GLAVNE PREDNOSTI: ✔ Povraćaj PDV-a – ogromna ušteda za kupce! ✔ Sopstveni gasni kotao – maksimalna kontrola i niska cena grejanja ✔ Savremena zgrada od 5 spratova ✔ Parking ispred zgrade – uvek siguran i dostupan prostor ✔ Vrhuska lokacija – blizina centra, prodavnica, prevoza, a ipak zaklonjeno i mirno ✔ U izgradnji, mogućnost biranja strukture i rasporeda ✔ Rok završetka: 2027. godina Investirajte pametno – izaberite dom u kojem se luksuz, funkcionalnost i praktičnost spajaju u idealnu celinu. Broj stanova je ograničen – rezervišite svoj na vreme! Zakažite razgledanje u terminu kada Vama najviše odgovara! 00381 69 2 111 999, 00381 69 1 222 999 Dostupni smo Vam non stop! 24 / 7 / 365 i subotom i nedeljom i praznicima!
ID nekretnine 216390
izmena 5.12.2025
ažuriran 10.1.2026
https://www.berzanekretnina.org/expose/216390
Preduzeće za nekretnine
KARDINAL RESIDENCE doo Jagodina
KARDINAL RESIDENCE doo Jagodina  Preduzeće za nekretnine
Jagodina, Kneginje MIlice 23/4/3

Br. u registru 2006