AGENCIJA ZA NEKRETNINE PORTA NEKRETNINE Tadeuša Košćuška 94
dodajte nekretninu u posebno izdvojene

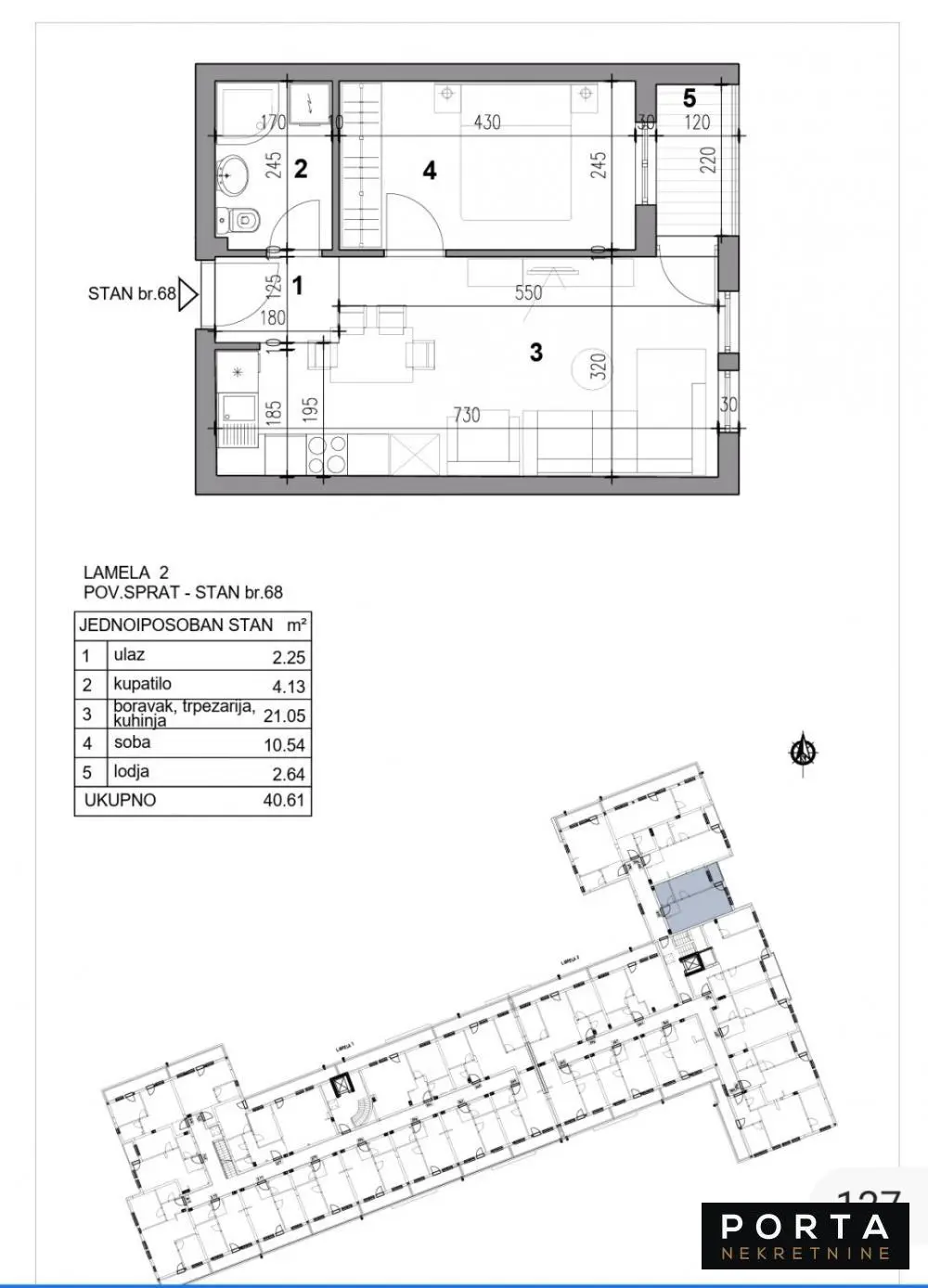
Mirijevo– moderan stan,novogradnja lux ID#1579

1 Jednoiposoban stanovi Zvezdara Mirijevo I II III IV 101500 evra
stan - prodaja
lokacija Beograd - Zvezdara - Mirijevo I II III IV
adresa
stan površina 40,61m²
sobe 1,5 Jednoiposoban
terase
sprat 4 od 4 spratova,
grejanje etažno
dodatno
uslovi kupoprodaje 101.500€ [ 2499 €/m² ] , Cena je u porastu

NOVOGRADNJA MIRIJEVO – MODERAN STAN U PRIRODNOM OKRUŽENJU Cena stana je 101 500 eur sa uračunatim PDV(10%) Predstavljamo vam jedinstvenu priliku za savremeno i komforno stanovanje u jednom od najlepših delova Mirijeva – na uzvišenju sa panoramskim pogledom na Dunav i Avalu! Stan se sastoji iz hodnika,velikog dnevno trpezarijskog boravka sa kuhinjom i trpezarijom,spavaće sobe, kupatila i velike terase sa prelepim pogledom. Lokacija: Mirna i zelena zona, idealna za porodičan život – udaljena od buke i saobraćaja, a na samo par minuta od: gradskog prevoza,škola ,vrtića, marketa, banke, pijace i Doma zdravlja O zgradi: Novogradnja – rok završetka mart 2026. Dve lamele, po četiri sprata + povučeni sprat Dva lifta, podzemna garažai Rampa za invalide Kvalitet gradnje: Hrastov višeslojni parket, termo blokovi poboljšanih karakteristika, PVC stolarija sa dvoslojnim staklom i aluminijumske roletne Stanovi su opremljeni: Norveškim radijatorima,Walk-in tuševima,sušačima veša i kvalitetnim pločicama renomiranih brendova Dodatne pogodnosti: Garažna mesta sa ventilacijom i protivpožarnim sistemom koje možete kupiti po ceni od 12000 eur sa uračunatim PDV(20%). Mogućnost ugradnje elektro-punjača (uz doplatu) Cena: Kupci prvog stana ostvaruju pravo na povraćaj PDV-a. Za više informacija, prezentaciju stana i rezervacije, kontaktirajte nas već danas. . Agencijska provizija 2%
ID nekretnine 215612
izmena 4.3.2026
ažuriran 25.3.2026
https://www.berzanekretnina.org/expose/215612
Agencija za nekretnine
AGENCIJA ZA NEKRETNINE PORTA NEKRETNINE
AGENCIJA ZA NEKRETNINE PORTA NEKRETNINE  Agencija za nekretnine
Beograd, Tadeuša Košćuška 94

Br. u registru 935


prikaz promena cene za ovu nekretninu
97084 € 26.11.2025 97100 € 18.2.2026 101500 € 4.3.2026