MAGNAT Kupac Svetozara Markovića 46
dodajte nekretninu u posebno izdvojene

12km od Bgd i 3km od Pančeva - Distributivni/proizvodni cent

2 Beograd Palilula poslovna zgrada 1700000 evra
poslovna zgrada - prodaja
lokacija Beograd - Palilula - Pančevački put
adresa Pančevački put
poslovna zgrada površina 522m²
grejanje centralno
dodatno
uslovi kupoprodaje 1.700.000€ [ 3256 €/m² ]

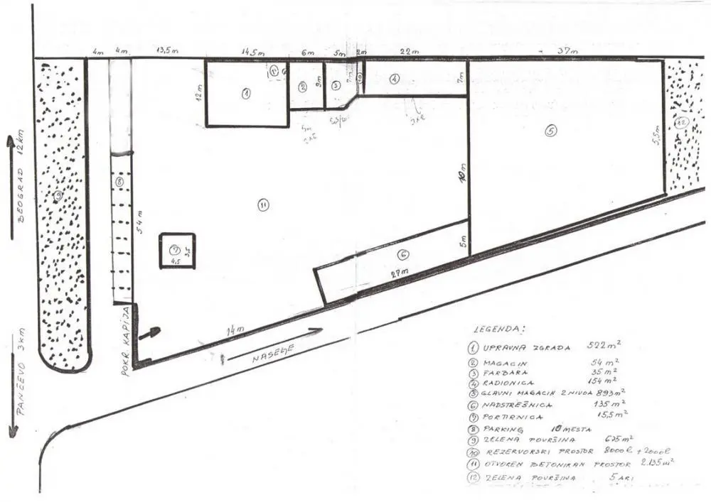
MAGNAT 064.5.800.900 - EKSKLUZIVNO prodaje - u ulici Pančevački put (12km od Beograda), kod Enmona, na Opštini Palilula, MAGNAT prodaje Distributivni centar za razne namene, koji se sastoji od 32 ara zemljišta i poslovne zgrade površine 522 m2, u tri nivoa, sa CG; Prizemlje: 6 kancelarija, čajna kuhinja, veliki sanitarni čvor, hodnik; I sprat: 5 kancelarija, čajna kuhinja, 3 WCa, prijemni hol; Potkrovlje: 3 velike kancelarije. U sklopu centra nalazi se i: - magacinska hala, kvalitetna gradnja, u dva nivoa, visina 6 - 10 m, površine preko 1.000 m2, mogućnost ulaska šlepera i kamionski prilaz; - radionica 154m2 + farbara 35m2, - magacin 54m2, - nadstrešnica površine preko 150 m2; - portirnica 20 m2, - plato za teške terete preko 2.150 m2, za lako manevrisanje vozilima; - parking za 10 vozila, - zelena površina od 6,75 + 5 ari. Sve ograđeno črvstom ogradom, velikim kliznim vratima za ulazak velikih kamiona. Distributivni centar je opremljen svim neophodnim za kvalitetno funkcionisanje: voda, struja, grejanje, telefonske linije, teretna vaga i dr. U blizini je stanica bus linije 108 (početna stanica je na okretnici kod Bogoslovije). MAGNAT preporučuje ovaj poslovni objekat firmama koje se bave distribucijom ili proizvodnjom, takođe može da se pretvori u manji tržni centar sa restoranom i prenoćištem. Useljiv je ODMAH. UKNJIŽEN - Mogu kreditni kupci! RAZMISLITE: Odlična prilika za investiciju ili posao. Za više info kontakt mob: 0645.800.900 (Kt01) ID#082402 -------------------------------------------------------------- ***GARANCIJA NAJNIŽE CENE ZA OVU NEKRETNINU - Ukoliko ipak negde pronadjete nižu cenu, pošaljite nam link na NekretnineMagnatK@gmail.com da proverimo istinitost informacije, te kupovinu ove nekretnine preko MAGNAT-a, dobijate po toj nižoj ceni, a uz to i dodatni bonus - povraćaj od 10% Agencijske Provizije!!!
ID nekretnine 211306
izmena 3.10.2025
ažuriran 20.10.2025
https://www.berzanekretnina.org/expose/211306
Agencija za nekretnine
MAGNAT Kupac
MAGNAT Kupac  Agencija za nekretnine
Beograd, Svetozara Markovića 46

Br. u registru 178